联系电话:0712-2871699 / 139-8650-7773
联系电话:0712-2871701
139-719-50566
网站首页
关于四维
客户案例
产品展示
新闻中心
联系我们
1
2
3
1
2
3
产品展示
Column name
装车系列设备
装船系列设备
粉体均化卸料系列设备
粉体混合、调湿系列设备
环保收尘设备
气力输送设备
打散阀、三通阀系列设备
联系我们
/Contact us
电 话:0712-2871699
手 机:13986507773
联系人:罗鹏 总经理
传 真:0712-2871700
邮 箱:xgsiwei@163.com
邮 编:432508
地 址:湖北省孝感市云梦县伍洛镇新发村316国道旁
网 址:http://www.xgsiwei.com
当前所在位置:
主页
>
产品展示
>
粉体均化卸料系列设备
水泥均化库
更新时间:
2019-04-29 15:07
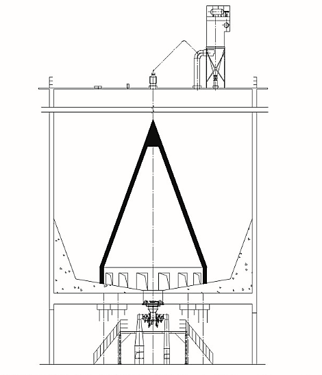
水泥均化库
水泥储存库是在库底中心设置一锥形混合室,以降低库内的卸料压力,消除漏斗流。混合室一般设8-12个进料孔,在混合室和库壁之间的环形区设有8-12个充气区,卸料时轮流向对应的环形小区充气,使部分水泥流向中心混合室。物料在自上而下的流动过程中,切割水平料层而产生重力混合作用,进入混合室后又因混合室内的连续充气搅拌而进一步均化。这种库的均化值约5~9,电耗0.15-0.3Kwh/t。
上一篇:CP型均化库
下一篇:粉状物料分配器
联系我们/CONTACT
座机:0712-2871699
手机:13986507773
联系人:罗鹏 总经理
邮编:432508
邮箱:xgsiwei@163.com
地址:湖北省孝感市云梦县伍洛镇新发村316国道旁
友情链接
港口设备网
© 2020-2025 孝感市四维机械制造股份有限公司
联系电话:0712-2871699
鄂ICP备11020073号-1