联系电话:0712-2871699 / 139-8650-7773
联系电话:0712-2871701
139-719-50566

产品展示

Column name

联系我们/Contact us
电 话:0712-2871699
手 机:13986507773
联系人:罗鹏 总经理
传 真:0712-2871700
邮 箱:xgsiwei@163.com
邮 编:432508
地 址:湖北省孝感市云梦县伍洛镇新发村316国道旁
网 址:http://www.xgsiwei.com
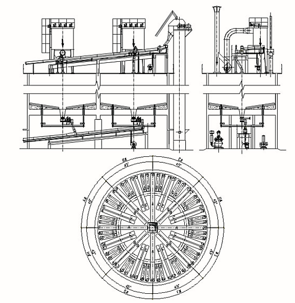
间歇式均化系统 更新时间:2019-04-29 13:55
间歇式均化系统
        间歇式均化库是由搅拌库和储存库组成的生料均化系统。一般设两个以上容量较小的搅拌库和一个容积较大的储存库。流化空气经库底充气装置的透气层进入搅拌库内的底部,使库内料粉松动并呈流态化。库底充气装置各区按一定规律改变进气压力或进气量,使呈流态化的粉料产生上下翻滚和激烈搅拌,从而使全库生料逐步得到充分混合,最终达到成分均匀一致的目的。间歇式均化库均化效果好,但耗电量较大。它采用多库间歇作业,当一个库的物料均化完成后,均化过程停止,库内物料留存待用、入窑或转入储存库;此时另外的均化库进行均化,以实现物料均化过程、使用不间断。

                                                  间歇式均化系统(图1)
上一篇:暂无

下一篇:MK混合室库
联系我们/CONTACT
  • 座机:0712-2871699
  • 手机:13986507773
  • 联系人:罗鹏 总经理
  • 邮编:432508
  • 邮箱:xgsiwei@163.com
  • 地址:湖北省孝感市云梦县伍洛镇新发村316国道旁
友情链接

© 2020-2025 孝感市四维机械制造股份有限公司

联系电话:0712-2871699鄂ICP备11020073号-1