联系电话:0712-2871699 / 139-8650-7773
联系电话:0712-2871701
139-719-50566
网站首页
关于四维
客户案例
产品展示
新闻中心
联系我们
1
2
3
1
2
3
产品展示
Column name
装车系列设备
装船系列设备
粉体均化卸料系列设备
粉体混合、调湿系列设备
环保收尘设备
气力输送设备
打散阀、三通阀系列设备
联系我们
/Contact us
电 话:0712-2871699
手 机:13986507773
联系人:罗鹏 总经理
传 真:0712-2871700
邮 箱:xgsiwei@163.com
邮 编:432508
地 址:湖北省孝感市云梦县伍洛镇新发村316国道旁
网 址:http://www.xgsiwei.com
当前所在位置:
主页
>
产品展示
>
粉体均化卸料系列设备
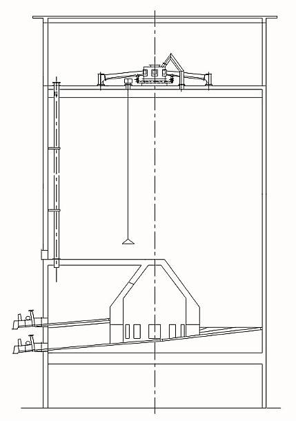
MK混合室库
更新时间:
2019-04-29 13:58
MK混合室库
MK混合室型
连续式生料均化库
,库顶采用平铺进料,库底依靠环形区的充气对平铺物料进行垂直重力切取卸料,在混合室内再通过强气流搅拌来进行混合,实现物料混合均化的目的,均化值为5-7,单位电耗约为0.25-0.4kWh/t。
上一篇:间歇式均化系统
下一篇:MK-A改进型混合室库
联系我们/CONTACT
座机:0712-2871699
手机:13986507773
联系人:罗鹏 总经理
邮编:432508
邮箱:xgsiwei@163.com
地址:湖北省孝感市云梦县伍洛镇新发村316国道旁
友情链接
港口设备网
© 2020-2025 孝感市四维机械制造股份有限公司
联系电话:0712-2871699
鄂ICP备11020073号-1